Le Vignoble de l’Arche
Appartements en vente à Leytron
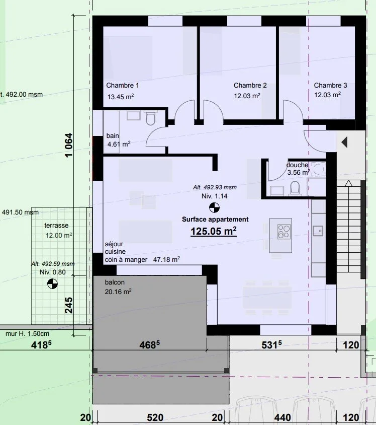
Les villas jumelles comprennent des appartements de 4 pièces et un appartement de 3 pièces.
-
séjour, coin à manger, cuisine: 39.5 m2
chambre 13.1 m2
chambre 11.5 m2
chambre 11.5 m2
douche 3.2 m2
bain 4.2 m2
balcon 13.2 m2
cave 8.5 m2
-
séjour, coin à manger, cuisine: 38 m2
chambre 14.2 m2
chambre 11.0 m2
chambre 11.0 m2
douche 4.5 m2
bain 4.1 m2
balcon 20.5 m2
cave 9.0 m2
-
séjour, coin à manger et cuisine: 37.8 m2
chambre: 13.0 m2
chambre: 11.0 m2
douche: 3.0 m2
douche: 2 3.5 m2
réduit: 1.5 m2
cave: 5.0 m2
Jardin Rez Nord
Terrasse: 130 m2
Jouissance: 18 m2
-
séjour, coin à manger, cuisine: 40.1 m2
chambre: 14.2 m2
chambre: 11.0 m2
chambre: 11.0 m2
douche: 4.5 m2
bain: 4.1 m2
cave: 9.0 m2
Jardin Rez Sud
Terrasse: 12 m2
Jouissance: 70 m2
-
APPARTEMENT REZ N 104m2
695’000 CHF
APPARTEMENT REZ S 120m2
798’000 CHF
ATTIQUE 108 N m2
765’000 CHF
ATTIQUE 117 S m2
798’000 CHF
PLACES DE PARC
1 COUVERTE: 30’000 CHF
1 NON COUVERTE: 15’000 CHF
2 NON COUVERTES ENFILADE: 20’000 CHF
Ces villas jumelles prennent place le long de la route En Arche à Leytron.
